pondasi foot plat pdf


Detail Pondasi Foot Plate Pdf. Bahan Pondasi Foot Plat.


Small House Design 6x6 Meters 36 Sqm 20x20 Feet 400 Sqft Youtube Small House Design Plans Small House Floor Plans Small House Map

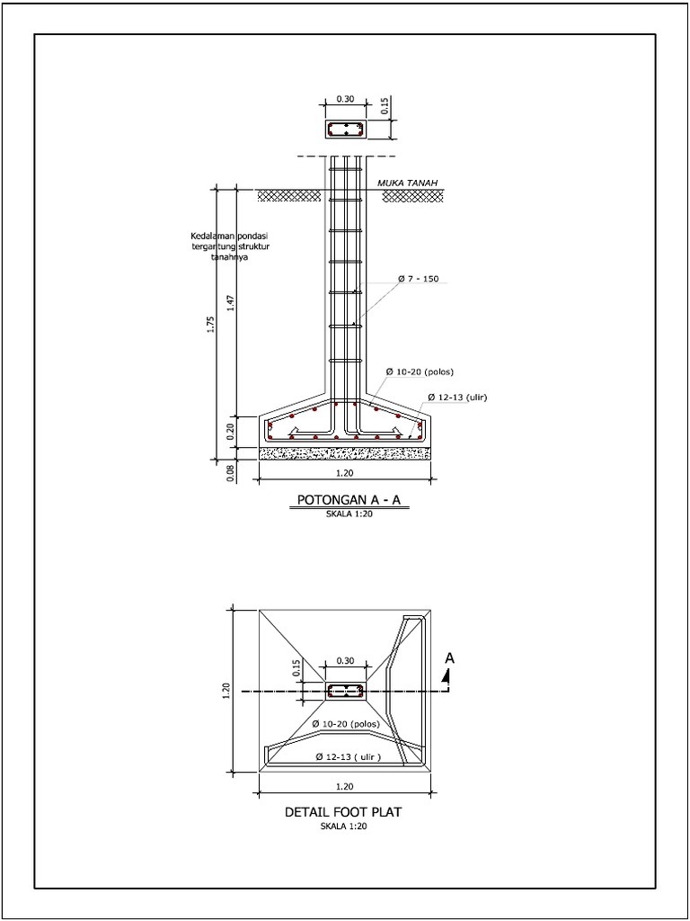
Pondasi foot plat ini biasanya digunakan pada rumah atau bangunan gedung 2 4 lantai dengan syarat kondisi tanah yang baik dan stabil.

. Download View Detai Pondasi Menerus Dan Dtl Pondasi Foot Plat Dan Dtal Slooppdf as PDF for free. Cara Menghitung Pondasi Telapak Foot Plate Pondasi merupakan bagian yang penting pada bangunan. DATA FONDASI FOOT PLAT DATA TANAH Kedalaman fondasi Berat.

Zaidir DrEng Konstruksi Beton II. Dengan daya dukung tanah yang cukup baik tentunya. Pengertian pondasi footplat atau tapak adalah sebuah struktur beton bertulang yang dibentuk mirip sebuah telapak kaki dan memiliki posisi dibawah kolom bangunan lainnya.

Pondasi Rumah Perencanaan Dan Proses Pekerjaan Jenis Pondasi Rumah. Pondasi Foot Plat Cakar Ayam Dan Karakteristiknya. Pondasi Plat Menerus Continuous Footing Pondasi ini juga terbuat dari konstruksi beton bertulang dengan mutu beton minimal K-175.

15 200 kgcm2. Pondasi foot plate atau pondasi cakar ayam biasanya di terapkan di bangunan 2 lantai atau lebih dimana kaki kaki beton dengan kelebaran tertentu di posisikan di bagian bagian struktur utama. Pondasi foot plat adalah jenis pondasi beton yang digunakan untuk kondisi tanah dengan daya dukung tanah sigma pada.

Pondasi Sumuran Pondasi sumuran menggunakan beton berdiameter 60 80 cm dengan kedalaman 1 2 meterPondasi ini digunakan. Didalam metode perencanaan pondasi langkah perhitungannya secara manual banyak menggunakan perhitungan rumit sehingga menjadi kurang praktis dan relatif lama. Fungsi utamanya adalah untuk meneruskan beban dari struktur bangunan ke tanah.

Disebut pondasi foot plate. Bentuk pondasi biasanya mengikuti dari bentuk bangunan utama. PERHITUNGAN FONDASI FOOTPLAT BENTUK EMPAT PERSEGI PANJANG A.

Sloof 20 x 25 cm Urugan Pasir 155 080 105 025 Urugan Tanah 020 Pasangan Batu Gunung 080. View Pondasi Telapakpdf from CIVIL ENGI 123 at Jakarta State Polytechnic. Pondasi telapak foot plate terbuat dari beton bertulang dengan bentuk pelat persegi empat atau persegi panjang.

Jika anda pernah melihat proses pembangunan rumah maupun gedung pasti akan mudah mengenalinya. Luas dasar foot plat A B x B y 39600 m 2 Tahanan momen arah x W x 16 B y B x 2 14520 m 3 Tahanan momen arah y W y 16 B x. Up to 3 cash back Pondasi Foot Plate - Free download as PDF File pdf Text File txt or view presentation slides online.

Berdasarkan denah gedung dan hasil perhitungan beban didapatkan 3 tiga jenis port al yang nantinya aka n berpengaruh pada. Pondasi telapak Foot Plate dan pondasi mini bor Strouss Pile. Pondasi banyak sekali macamnya tergantung dari fungsi bangunan bentuk bangunan serta kondisi tanah.

Pondasi Foot Plat Pondasi ini digunakan untuk menopang beban struktural maka. 21 Pondasi 211 Pengertian Pondasi Pondasi ialah bagian dari satu system rekayasa yang meneruskan beban yang di topang oleh pondasi dan beratnya sendiri ke dalam tanah dan batuan yang terletak dibawahnya. Salah satunya adalah Pondasi Telapak atau Foot Plate.

Pondasi telapaktapak banyak digunakan untuk pondasi rumah dan juga bangunan bertingkat seperti ruko rumah toko atau bangunan lainnya hingga ketinggian tiga lantai. Tegangan-tegangan tanah yang dihasilkan kecuali pada permukaan tanah merupakan tambahan kepada beban-beban yang sudah ada dalam masa. Salah satu upaya untuk mendapatkan hasil perencanaan pondasi foot plate yang akurat dalam waktu singkat yaitu dengan cara membuat program perencanaan pondasi.


15 X 40 Plantas De Casas Plantas De Casas Pequenas Modelos De Casas Duplex


Detail Pondasi Foot Plat Beton Bertulang Contoh Gambar Autocad


Detail Foot Plat Pdf Pdf


Detail Foot Plat Pdf Pdf


Rumus Pondasi Telapak Pdf


Pdf Behavior And Design Of Moment Reducing Details For Bridge Column Foundation Connections Semantic Scholar


2


Duplex Elevator Plane Floor Plans Diagram Plane


Pondasi Foot Plate Pdf


Arch3511 Container Detail Analysis Pdf Document Analysis Documents Container


Geosciences Free Full Text Effects Of Soil Foundation Interaction On The Seismic Response Of A Cooling Tower By 3d Fem Analysis Html


Experiment On Seismic Behavior Of Earthquake Resilience Prefabricated Cross Hinge Column Foot Joint Sciencedirect


Detail Pondasi Footplat Dan Keunggulannya Dalam Konstruksi


Download File Excel Cara Hitung Pondasi Foot Plat Atau Cakar Ayam Besi Lantai Autocad


Pdf Hollow Bridge Columns With Triangular Confining Reinforcement Semantic Scholar


Reinforcement Column Section Drawing Free Download Dwg File Cadbull Section Drawing Brick Detail Steel Trusses


Gambar Detail Pondasi Tapak Atau Pondasi Cakar Ayam Denah Bangunan Rumah Beton Konsep Arsitektur


Buildings Free Full Text Seismic Strengthening Of Rc Structures Using Wall Type Kagome Damping System Html


Pin On Building Information Modeling

Related : pondasi foot plat pdf.